音更の不動産】公開物件数

賃貸アパート
2,133
賃貸テナント
100
不動産売買
202
ページトップへ
BUY
買いたい
売 買物件詳細

【価格改定】西17条南5丁目 2号棟

3,670万円
【価格改定】西17条南5丁目 2号棟 外観
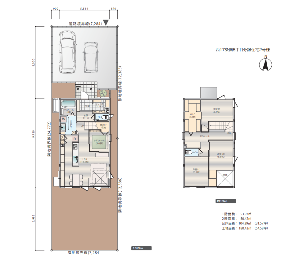
【価格改定】西17条南5丁目 2号棟 間取り
物件No. 3382762
所在地 帯広市西十七条南5丁目4-146
築年月 2022年9月
種別/階数 戸建て/地上2階建 
交通 十勝バス 【春駒通17条】
管理・共益費 -
修繕積立金 -
コメント ●太陽光発電システム3.12kW、蓄電池(ニチコン製)4.0kWh、HEMS搭載
●家具付(ソファ、センターテーブル、TVボード、ダイニングセット、ラグマット)
●照明器具付(全室LED照明)・カーテン類付・エアコン付(リビング1台)
●エクステリア(アスファルト舗装・民地石・平板・植裁)
※プラン図は図面を基に描いている為、実際と多少異なる場合があります。
※家具類・小物類・外構は価格に含まれます。
洗濯機・冷蔵庫・車は価格に含まれません。
間取 4LDK
所在階 -
総戸数 -
土地権利 所有権
用途/地目 第二種中高層住居専用地域/宅地
バルコニー面積 -
引渡 即時
取扱 ハウスドゥ帯広|ハウスドゥ 白樺通
仲介手数料 -
学校区 若葉小学校/帯広第八中学校
設備 整形地/太陽光発電システム/ウォークインクローゼット/追い炊き風呂/浴室1坪以上/システムキッチン/カウンターキッチン/食器洗乾燥機/24時間換気システム/モニタ付インターホン/上水道/下水道/電気
専有面積 -
構造 軽量鉄骨造
面積 建物/104.39㎡ 土地/180.43㎡
建ぺい/容積 建ぺい率60% 容積200%
接道状況 北側公道7.28m
現況 空き
駐車場 有り※あり 普通:2台
取引態様 媒介
管理会社 -
リフォーム -
備考 省エネ給湯器・複層ガラス
メールでお問合せ
電話でお問合せ
LINEでお問合せ